Ficus Lane

This is a renovation of a large condominium unit covering both interior and exterior areas. Working within a residential building introduces greater complexity than a typical home renovation. Close coordination with building management and thorough inspection of the building’s electrical, plumbing, HVAC, and structural systems are essential before planning and execution. The project requires careful expertise and attention to detail.

PROJECT

Ficus Lane Condominium

Location

Sukhumvit Soi 44/1, Phra Khanong, Khlong Toei, Bangkok, Thailand

Layout

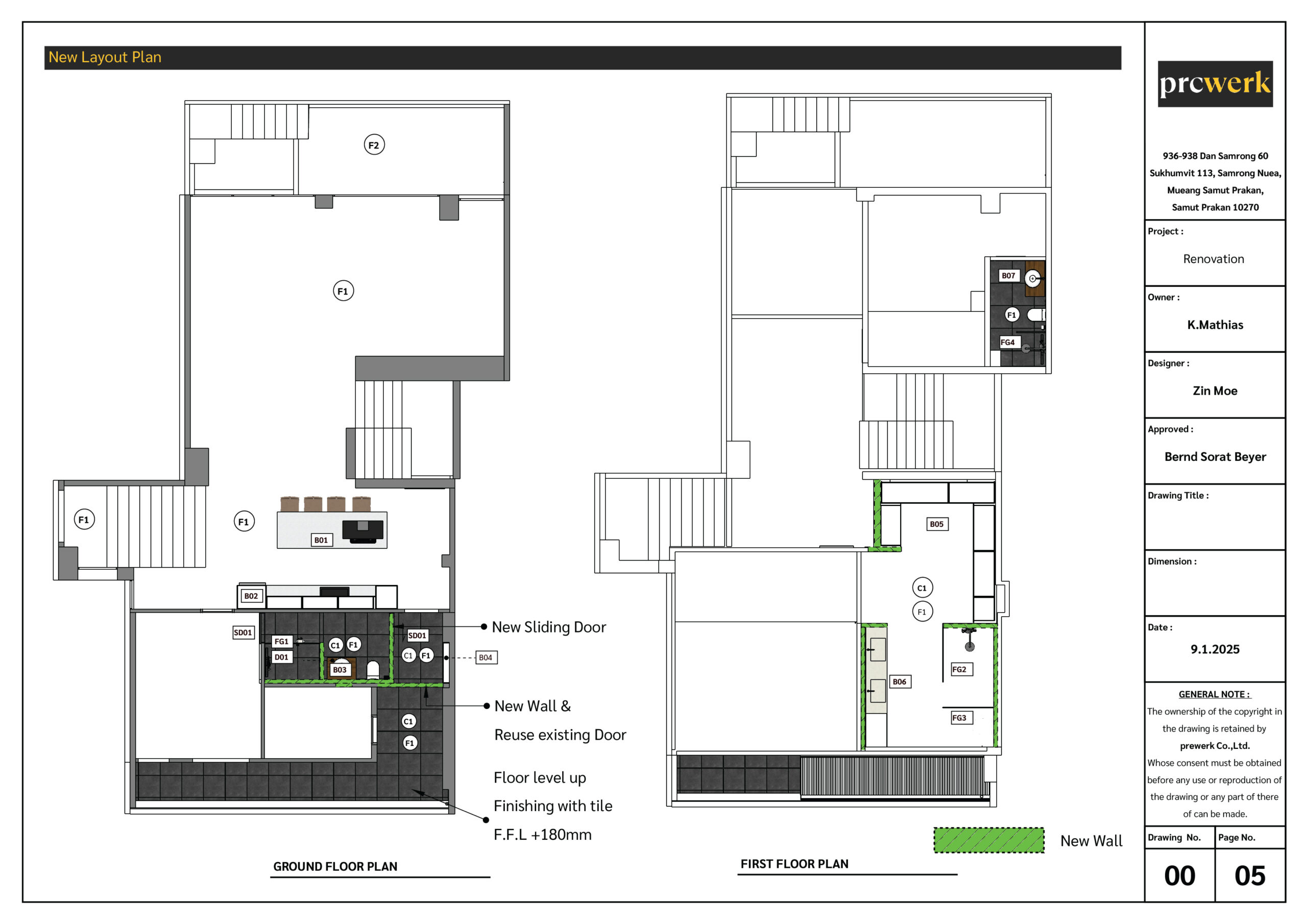
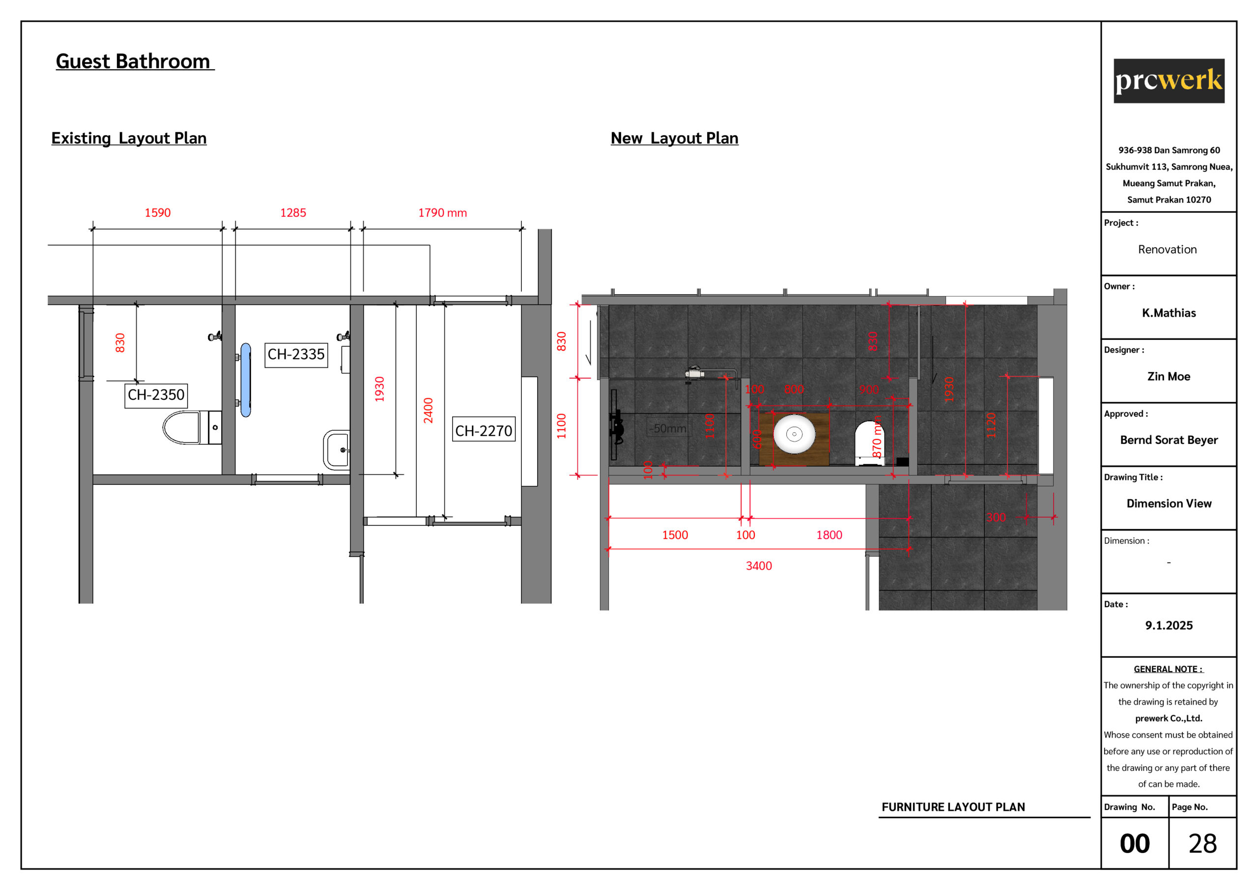
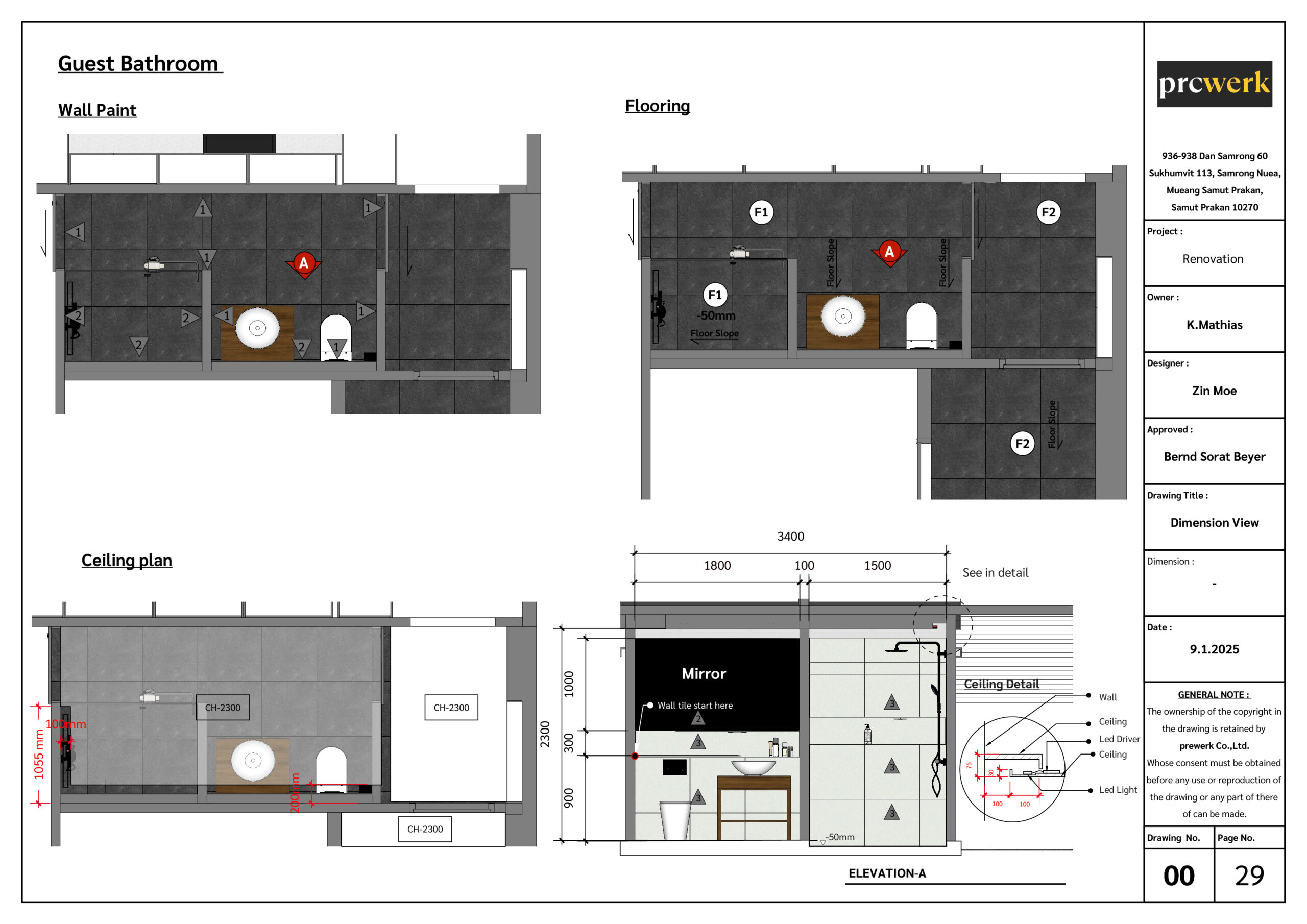
2 Bedroom, 1 Diningroom, 1 Livingroom, 3 Bathroom, 2 Kitchen, 1 Terrace

Construction & Extension

Work in a condominium presents unique challenges, including restricted site access, limited elevator/use windows, permitted noise hours, and the need to minimize disruption to residents. Preparations included reviewing building restrictions, conducting detailed on-site surveys, and establishing site access plans, storage locations, transport schedules, and dust/noise mitigation measures prior to starting work.

Construction began with systematic demolition according to the approved drawings. After clearing the area, structural reinforcements were carried out as needed, such as strengthening selected partition walls to accommodate new functions. The terrace substructure was installed using aluminum framing before laying teak decking to ensure strength and proper drainage. Mechanical, electrical, and plumbing works were sequenced to avoid overlap: new piping and wiring were installed, connection boxes and outlets positioned, and then finishes were applied. Quality control was maintained at every stage to ensure compliance with drawings and safety standards.

Planning & Design

Design was driven by the client’s functional requirements while respecting the building’s structural and system constraints. The design team inspected existing structure—beams, columns, and load-bearing walls—and surveyed the current electrical, plumbing, and HVAC systems to define the scope of feasible changes safely. Detailed planning addressed layout, fixture locations, appliance placements, routing for pipes and cables, and waterproofing strategies for wet areas. Appropriate material selections were specified—e.g., water-resistant tiles for bathrooms and teak decking for the terrace—while kitchen layouts were adapted for the intended equipment and shared use. Construction drawings, a materials list, and a preliminary schedule were prepared for coordination with the site team and building management.

Renovation & Interior

The finished work met the defined scope and functional requirements. Interior spaces were modernized and optimized for practical use, with careful spatial allocation across bathrooms, kitchens, corridors, the terrace, and other utility areas to meet the client’s needs. Key building systems were inspected and upgraded where necessary, extending service life and improving long-term safety. Effective coordination with building management reduced interruptions and helped the project complete on schedule. Overall, the renovation delivered a functional, contemporary living environment within the planned timeframe.

Scroll to Top